Van kasteeldomein tot woonzorghuis
In het dorp Sint-Ulriks-Kapelle in het hart van het Pajottenland ligt een voormalig kasteeldomein waar de VZW De Verlosser en de zusters huizen. Het parkdomein is beschermd erfgoed en omvat naast het landhuis ook koetshuizen, een boerderij, aalmoezenierswoning,… Om ook in de toekomst kwaliteitsvolle ouderenzorg te kunnen aanbieden, heeft PLUSOFFICE een masterplan gemaakt dat het kasteel- en beschermde parkdomein versterkt en de krijtlijnen uitzet voor de verdere uitbouw van een woonzorgcentrum met 150 bedden.
Lees meer
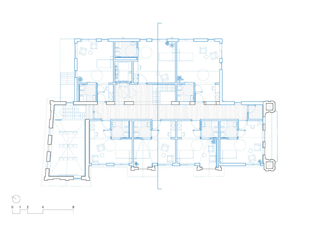
Als onderdeel van dit masterplan renoveerde PLUSOFFICE “Gaudium”. Dit voormalige koetshuis werd gebruikt als novicenresidentie. De historische gevels zijn gerestaureerd, de bijgebouwen vervangen en het ontwerp is gebaseerd op een bijna energieneutraal technologieconcept. De heringerichte residentie zal plaats bieden aan negen bewoners, die elk een volledig uitgeruste verzorgingskamer hebben en enkele speciale woonruimtes delen. Het project is zo bedacht dat het eerst kan dienen als woongemeenschap voor de zusters, inclusief een eigen huiskapel, en later zonder grote aanpassingen kan dienen als kleinschalig woonzorgcentrum. Door de directe koppeling met de bestaande woonzorg gemeenschap, met het kasteelpark en de moestuin kan de buitenruimte ook actief gebruikt worden als onderdeel van het zorgaanbod.
De ingreep van PLUSOFFICE herwaardeert het oorspronkelijke hoofdvolume, vernieuwt de dakvorm en plaatst een “tweeling zuster” als uitbreiding naast het oorspronkelijke gebouw. De nieuwe dakvorm sluit naadloos aan op het historische gebouw en is gemaakt van kleidakpannen in harmonie met de bestaande bakstenen gevel. De nieuwe aanbouw neemt dit materiaalgebruik over en breidt het uit met eigentijdse raamopeningen. De ballustrades voor deze ramen zijn figuratief gedetailleerd, geïnspireerd op de fijne houten uitsparingen van het hoofdgebouw.
- Locatie: Brusselstraat 647, 1700 Dilbeek
- Team: PLUSOFFICE i.s.m. Util, Boydens
- Opdrachtgever: De Verlosser vzw
- Fotograaf: Dennis De Smet














