Stedelijk Lyceum Lange Beeldekens
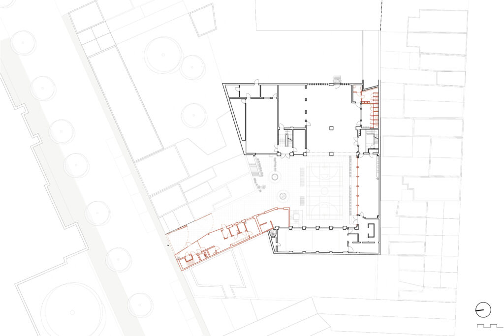
Twee leegstaande panden in de Lange Beeldekensstraat maken plaats voor een nieuw administratief gebouw. Het Stedelijk Lyceum Lange Beeldekens krijgt zo een uitnodigend nieuw entreegebouw dat de verbinding realiseert tussen de straat en de schoolgebouwen middenin het bouwblok.
De nieuwe doorsteek wordt geflankeerd door een nieuw secretariaat, zorglokalen en werkplekken voor de administratieve medewerkers en zorgleerkrachten. Bovenop kijken de nieuwe leraars- en directiekamer uit over de hele schoolsite. De polyvalente ruimte vormt de kroon van het gebouw en tuurt op zijn beurt in de verte over de stadshorizon. In het bouwblok krijgt het middengebouw een uitbouw in de vorm van een elegant stalen vakwerk dat onderaan plaats maakt voor een overdekte speelplaats en bovenaan extra ruimte geeft aan twee nieuwe klaslokalen.
Lees meer
De gevelmaterialen weerspiegelen en maken de sprong tussen de materialen van de schoolgebouwen en de publieke gebouwen in de straat: een sterke betonnen plint, rode keramische gevelpanelen en donkergrijze leien op de bovenste verdieping. Een weelderig en kleurrijk intensief groendak verbindt de lerarenkamer met de speelplaats.
Overdag kan de grote schoolpoort aan de straat blijven openstaan en plooit de stoep zo naar binnen. Ouders, kinderen, bezoekers kunnen hier even verpozen of elkaar ontmoeten vooraleer de site te betreden én zonder de stoep volledig in te nemen. Na de schooluren plooit de publieke ruimte zich terug maar blijft de polyvalente ruimte bovenaan toegankelijk voor de omwonenden, buurtvereningen, derden, etc… De school wordt een “brede school” met een fantastisch zicht op de wijk.
- Locatie: Lange Beeldekensstraat 264, Antwerpen
- Team: PLUSOFFICE, TECON
- Opdrachtgever: AGSO Antwerpen
- Fotograaf: Pieter Rabijns















