Hi! Site
The redevelopment of an abandoned coffee factory nestled in the corner of the Brussels Ring and the A12 reconciles a large-scale industrial zone with the valley landscape, alternative mobility, and a 21st-century way of working. Through a radical commitment to depaving, the reuse of buildings and materials, and a slow, phased approach, the Hi! Site begins to take shape an experiment in circular area development.
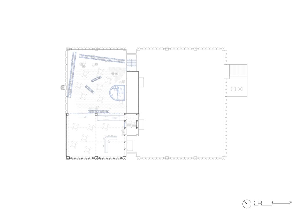
The landscape design and greening of the site are used to restore the valley, making room for ecological goals, the removal of more than half of the paved surfaces, and the associated water retention. The design focuses on diversifying access to the site through alternative mobility modes, such as connecting to the cycle highway and the future ring bike path. Active modes of transport are given the best spots on the site.
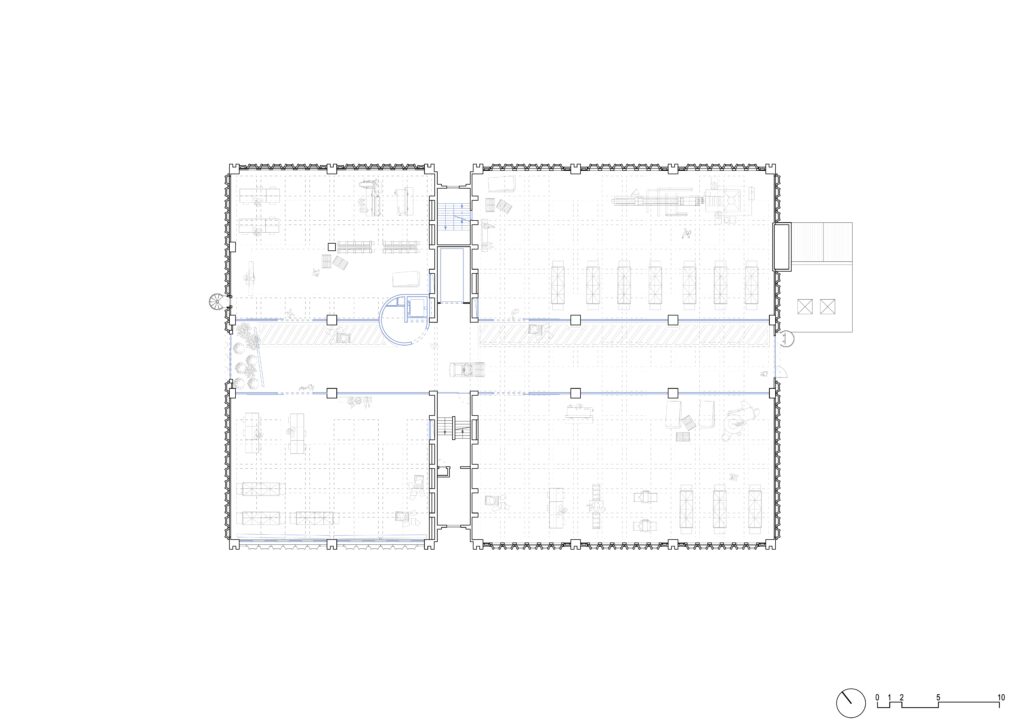
The initial phase included the reuse of several warehouses, a temporary location for the municipality’s multifunctional hall, and space for indoor sports at Arenal. This mix of functions helps to create a more inclusive place that remains active outside of office hours.
Read more
With the transformation of the production tower into Hi! MAAK, PLUSOFFICE realizes a stacked SME hall of four stories the first of its kind in Flanders. The robust concrete structure and façade of the existing building present an opportunity to test circular material use, with reused canopies, silicate bricks, and paneling from other demolition sites.
On the ground floor of the office building, Hi! Meet offers a progressive co-working space in an era of remote work. Here, companies that have downsized their office footprint can temporarily come together to host trainings, brainstorm sessions, workshops, and more. The transformation treats the building as it was found, reusing only existing materials and adding a semi-permanent scaffolding structure as an entrance.
On the upper floors, Hi! Werk converts the open-plan office spaces into modular work units again using reclaimed materials, demountable walls, and reused office furniture left behind.
- Location: Antwerpselaan 1, 1853 Grimbergen
- Team: PLUSOFFICE, Plant en Houtgoed, Laura Muyldermans (Hi! Werk), Piece Montée (Hi! Meet) i.s.m. Denkbar, Rotor
- Client: Global Estate Group
- Photographer: Jeroen Leurs, Pieter Rabijns
























